我有一所房子,面朝大海,春暖花开。”
古今中外,房子对人们不仅是一处居所,更是身心的栖息地,是自主选择的一种生活方式。房子所处的位置环境、内部构造,更是能代表着屋主所向往的生活。有人向往都市便捷热闹的生活,有人偏好归隐山林一般的隐士生活......
而本次的屋主便是后者,在阿那亚·雾灵山的深处,她定下一套123㎡的房子,每次推开窗,她想要的不是逃离世界的归隐,而是一场“生活在别处”的温柔实验——这123㎡不仅是一套房子,更是她心中面朝山林、春暖花开的“另一种人生”。
但故事总有转折,精装交付的房子无法满足个性化的理想,空间完整,生活却无法落脚。于是,推倒重来成为一场必然的仪式——让山风、月光与笑声,真正住进来。

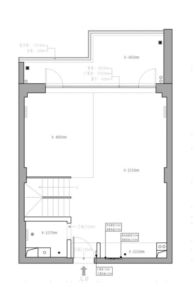
改造前、后对比图
